1931 Hudson 4door
2rusty
Member
I am looking for a frame. There have been several over the years but I’m always to late to get one. All I want is the frame bought a parts car body so there not enough to restore but I haven’t seen one at a street Rod show. At least it will get seen lol. I will make a frame if I can’t find one Had the car for 25 or more years. Thanks
0
Comments
-
Are you a member of the HET Club?
- You might want to ask, on the HET Club website forum - Essentially, this is the 'Open' forum, and asking there may give you another avenue for your inquiry;
- Also, you could advertise for your frame within the WTN, the HET Club's award winning bi-monthly magazine (published every other month). Advertisement in the WTN classifieds is 'free', however is only available to HET Club members;
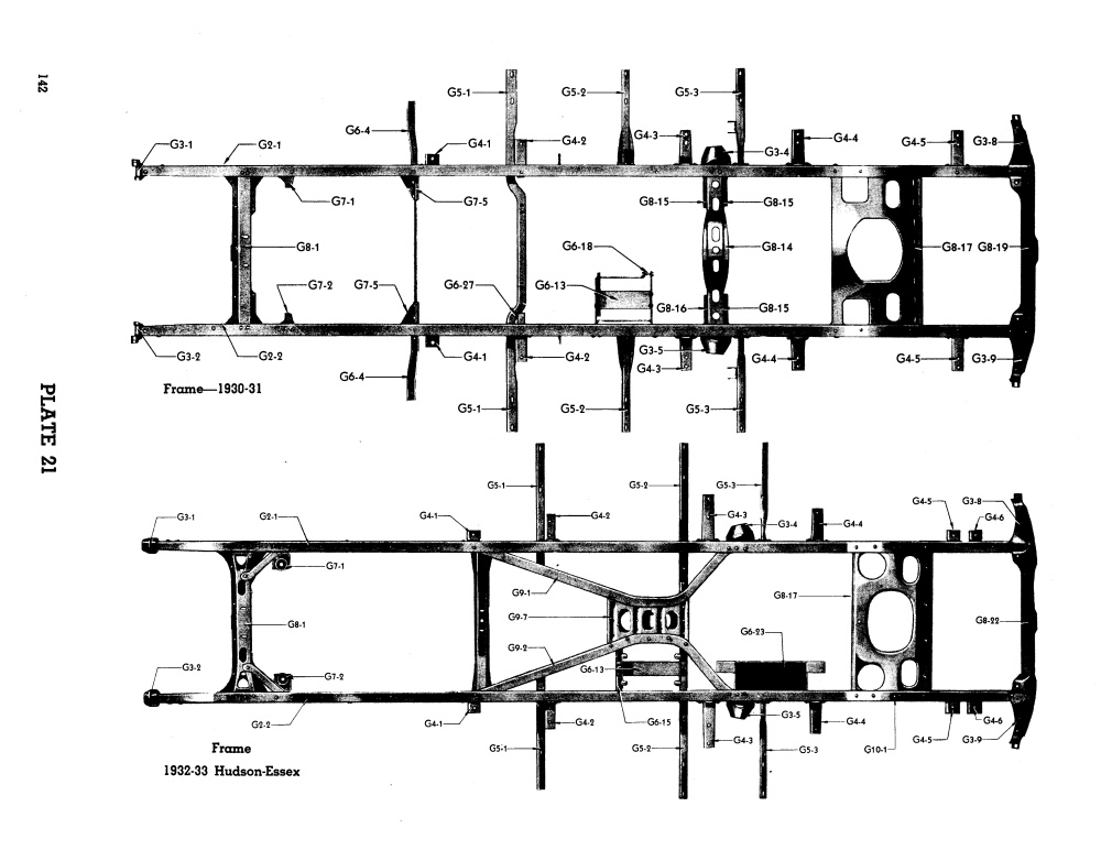
As shown in the attachment, it appears that your frame was the same, for both 1930 & 1931(?). While this is very simplified and leaves many questions (was a two-door frame shorter than a four-door, were the Essex & Hudson variations of the fame identical/similar, etc..), it would expand your search, effectively doubling your chances on finding a suitable frame.
The attached .jpg file was taken from the '1930 - 1939 Hudson Master Chassis Parts' Manual, available for download from the online HET Club library - here:
https://hetclub.org/index.php?option=com_booklibrary&task=view_bl&id=320&catid=128&Itemid=1096
(you may need to be logged-in to the HET Club website to view).
Hope this helps -0
Categories
- 36.9K All Categories
- 113 Hudson 1916 - 1929
- 20 Upcoming Events
- 93 Essex Super 6
- 28.6K HUDSON
- 574 "How To" - Skills, mechanical and other wise
- 995 Street Rods
- 151 American Motors
- 180 The Flathead Forum
- 49 Manuals, etc,.
- 78 Hudson 8
- 44 FORUM - Instructions and Tips on using the forum
- 2.8K CLASSIFIEDS
- 608 Vehicles
- 2.2K Parts & Pieces
- 77 Literature & Memorabilia
- Hudson 1916 - 1929 Yahoo Groups Archived Photos
